Erst durch die Auswertung historischer Quellen wird die Historisch-genetische Rekonstruktion der Kampfmittelbelastung (HgR-KM) ermöglicht. Diese Quellen lagern in öffentlichen Archiven und Behördenregistraturen. Sie werden durch Recherchen erschlossen. Die grundsätzliche Schwierigkeit bei Recherchen besteht darin, dass sich die Archivalien in unterschiedlichen Archiven befinden und dort nicht unter rüstungsaltlasten- oder kampfmittelspezifischen Aspekten zusammengefasst oder abgelegt sind. Aus den sehr heterogenen Beständen unterschiedlicher Herkunft (z. B. Ministerien, Verwaltungseinheiten etc.) gilt es, gezielt die relevanten Informationen zu finden und zu extrahieren. Dabei sind Bundes-, Landes-, Bezirks- und kommunale Archive ebenso zu berücksichtigen wie Archive von Wirtschaftsunternehmen und -verbänden. International sind vornehmlich Archive in den USA, in Großbritannien, Frankreich und Russland zu bearbeiten. Außerdem sind Archive militärischer Behörden zu nutzen, die der Öffentlichkeit normalerweise nicht zugänglich sind.
Bei der Rekonstruktion von historischen Zuständen und Vorgängen auf Liegenschaften (z. B. militärischen Standorten oder Rüstungsstandorten) beschränken sich die Recherchen nicht ausschließlich auf konkrete Liegenschaften, da nur in seltenen Fällen umfangreiche liegenschaftsbezogene Aktenbestände existieren. Neben der liegenschaftsbezogenen Recherchetätigkeit wird auch nach übergeordneten und grundlegenden Themenbereichen recherchiert, wie beispielsweise nach allgemeinen Dienstvorschriften, Berichten alliierter Wirtschafts- und Militäraufklärung und Ähnlichem. Die alliierten Streitkräfte betrieben während des Zweiten Weltkriegs eine intensive Aufklärungsarbeit hinsichtlich der militärischen und ökonomischen Verhältnisse im Deutschen Reich. Die daraus resultierenden Aktenbestände sowie Sammlungen erbeuteten deutschen Schriftgutes (heute teilweise noch in ausländischen Archiven befindlich) bilden eine Quellengattung, der bei der Bearbeitung von Rüstungsaltlastenverdachtsstandorten ein einzigartiger Quellenwert zukommt.
Eine vergleichbare Vorgehensweise aus liegenschaftsbezogener und grundsätzlicher Recherche ist für kampfmittelbelastete Liegenschaften erforderlich. Darüber hinaus enthalten die Bestände der britischen (RAF) und amerikanischen (USAAF) Luftstreitkräfte detaillierte Informationen zu den Luftangriffen. Hieraus lassen sich sehr genau die bombardierten Flächen bestimmen und die potenzielle Kampfmittelbelastung ableiten. Ergänzt werden die Angriffsunterlagen durch grundlegende Archivalien zum Luftkrieg über Deutschland sowie durch Forschungsberichte über die Wirkung von Kampfmitteln und dergleichen mehr. Zusätzlich lassen sich aus Operationsberichten der Bodentruppen Hinweise auf Kampfmittelbelastungen durch Bodenkämpfe und Munitionsvernichtungen gewinnen.
Das NLBL hat in seiner Funktion als Leitstelle des Bundes für Boden- und Grundwasserschutz auf Erlass des damaligen Bundesministeriums für Raumordnung, Bauwesen und Städtebau (Erlass BMBau, vom 07.03.1995) eine Archivalien-Datenbank erstellt, die den besonderen Ansprüchen der Datenart, -herkunft und Thematik angepasst ist. Hierin werden alle durch die Archivrecherchen bearbeiteten Materialien und Informationen zentral verwaltet. Dabei wahrt die Archivalien-Datenbank den Zusammenhang zwischen Akten und den entsprechenden registraturbildenden Behörden, indem die Archivalienerfassung das Provenienzprinzip der jeweiligen Archive beibehält und widerspiegelt.
Historische Quellen liegen in den Archiven in unterschiedlicher Form vor. Meist handelt es sich um Akten, d. h. Schriftgut, welches gebunden, geheftet oder aber als lose Blattsammlung gelagert wird. Karten und Pläne können in den Akten enthalten sein oder aber als Einzelbestände vorkommen. Dies trifft auch auf historische Luftbilder und Fotografien zu. Die Archivalien fließen in reproduzierter Form unterschiedlicher Art in das zur Archivalien-Datenbank gehörige Archiv ein.
Als Medienformen sind dabei vertreten: Papierkopien, Mikrofilme, Mikrofiches, Fotonegative, Fotopositive, Dias und Scans.
Die recherchierten Archivalien und deren Inhalte werden in der Datenbank mittels vorgegebener Eingabestruktur erfasst. Mit der Zuweisung der Bestände und der Einzelsignatur der Archivalien ist die zweifelsfreie Zuordnung zwischen Archivalienkopie und Aktenoriginal im Archiv gewährleistet, was insbesondere der Nachvollziehbarkeit und wissenschaftlichen Überprüfbarkeit der zitierten Quellen einerseits sowie der ordnungsgemäßen Dokumentation andererseits dient.
Zu jeder Akte werden der Originaltitel und der Entstehungszeitraum festgehalten. Jede Archivalie wird mit einer Kurzbeschreibung zusammenfassend beschrieben. Hier fließen solche Informationen ein, die nicht über die festgelegten Thesaurus-Tabellen („Archivalien-Art, -Inhalt, -Objekte“) erfasst werden können.
Mithilfe eines definierten Thesaurus werden jeder Archivalie bestimmte thematische Schlagworte zugeordnet:
1. Als „Archivalien-Art“ wird festgehalten, ob es sich um Texte, Karten, Pläne, Fotos oder Luftbilder handelt.
2. Fachliche Aspekte der Archivalien spiegeln sich in der Tabelle „Archivalien-Inhalt“ (Tab. A-2.2-1) wider.
3. Der Bezug zu bestimmten Standort- und Nutzungsarten wird über den Thesaurus „Archivalien-Objekte“ (Tab. A-2.2-2) hergestellt.
|
(BE) |
Besondere Ereignisse |
Betriebsunfälle (Brände, Explosionen, Leckagen), Demontage, Entsorgung von Munition und Kampfstoffen, Kriegsschäden / Bombentreffer / Sprengungen |
|
(KS) |
Konstruktion |
Planung, Baumaßnahmen zu baulicher Infrastruktur |
|
(NA) |
Natürliche Standortfaktoren |
Boden, Geologie, Luft, Wasser (wasserrechtliche Genehmigungsverfahren) |
|
(PN) |
Produktion / Nutzung |
funktionale Struktur (Funktion von Anlagenteilbereichen, Gebäudenutzungen), militärische Nutzung, Produktionsprozesse (eingesetzte Stoffe), Ver- und Entsorgung |
|
(OP) |
Operation |
militärische Planung, Bombardierungen |
|
(OR) |
Organisation |
allgemeiner Schriftverkehr, Finanzen, Personal, Sitzungsprotokolle, Verwaltungsstruktur |
|
(WT) |
Waffentechnik |
Konstruktion von Waffen, technische Erläuterungen, Pläne zu Waffen |
|
(S) |
Sonstiges |
|
(BR) |
Bergbau und Rohstoffgewinnung |
(Kohle-, Salz-) Bergwerke, Raffinerien |
|
(DP) |
Depot/Zeugamt |
Explosivstoffe, Kampfstoffe, Fahrzeuge, Nachschub, techn. Ausrüstung - keine Munition und Treibstoffe - |
|
(EA) |
Eisenbahnanlagen |
Bahnhöfe (Güter-, Verschiebebahnhöfe), Gleisanlagen, Bahndämme |
|
(ES) |
Entsorgungseinrichtungen |
Brandplatz, Delaborierungsanstalten u. -plätze, Kläranlage, Sprengplatz, Vergrabungs-/Versenkungsstelle, Zerlegungsstelle |
|
(FP) |
Flugplätze |
Flughafen, Feldflugplatz, Lande-/Notlandeplatz, Fliegerhorst, Einsatzplatz, Wasserflugplatz, Werksflugplatz |
|
(HW) |
Hafenanlagen und Werften |
Docks, Hafenbecken, Kaianlagen |
|
(IG) |
Industriebetr. / Gewerbebetr. allg. |
Stahlwerke, Kraftwerke, sonstige nicht zuzuordnende Industrie- und Gewerbebetriebe |
|
(LF) |
Land- und Forstwirtschaft |
Einrichtungen und Anlagen der Land- und Forstwirtschaft |
|
(KA) |
Kasernen |
Fasslager, Ölabscheider, Schrottplatz, Tankstelle, Wartungsbereich, Werkstatt, Waschstraße, Trafostation |
|
(MC) |
Militärchemische Produktion |
Sprengstoff-/Kampfstoffwerk, Pulver-/Munitionsfabrik, Zünderfabrik, Hydrierwerk, Nitrozellulosefabrik |
|
(MT) |
Militärtechnische Produktion |
Flugzeugbau, Panzerfabrik, Raketenbau, Waffenfabrik, Werft |
|
(MA) |
Munitionsanstalten |
Füllanlage/-stelle, Heeres-/Luftwaffen-Muna, Munitionsdepot |
|
(ST) |
Stellungen |
Artillerie, Bunker, Flak, Geschütze, Lauf-/Panzergräben |
|
(SW) |
Straßen und Wege |
Brücken, Autobahnen |
|
(TL) |
Tanklager |
Großtanklager, T-Stofflager, Raketentreibstofflager, Marineöllager, Heeres-/Marine-/Luftwaffentanklager |
|
(ÜA) |
Übungsanlagen |
Bombenabwurfplatz, Gasübungsplatz, Exerzierplatz, Schießbahn/-platz, Standort-/Truppenübungsplatz |
|
(VE) |
Versorgungseinrichtungen |
Rohrleitungen, Pipelines, Stromleitungen |
|
(WS) |
Wasserstraßen |
Flüsse, Kanäle, Schleusenanlagen, Sperrwerke, Wehre |
|
(SMI) |
Sonstige militärische Anlagen |
|
|
(S) |
Sonstiges |
nicht zuzuordnende Objekte |
|
(K) |
Kein Objekt |
Archivalie definitiv ohne Objektzuordnung (z. B. Munitionsbeschreibung, Personalakte etc.) |
Der Bezug zu konkreten Standorten oder Liegenschaften erfolgt über die „Standort-Tabelle“. Die Tabelle definiert die geografische Lage (Nord- und Ostkoordinate, Ortsname, Kreis, Bundesland) und eine konkrete historische Nutzung (z. B. Flugplatz, Munitionsanstalt usw.). Sie wird kontinuierlich ergänzt.
Mehrfachnennungen sind sowohl bei den Thesauri als auch bei der Standortzuordnung möglich.
In weiteren Eingabefeldern werden der Umfang der Originalakte (Seitenanzahl) sowie die Zahl der beim NLBL vorhandenen Kopien und die Sprache der Archivalie dokumentiert.
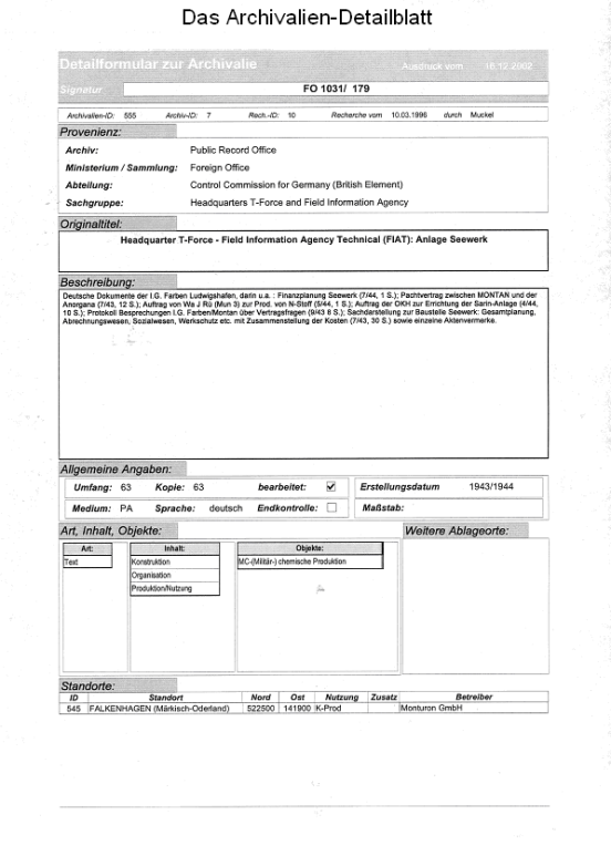
Nach Erfassung aller Informationen wird das „Archivalien-Detailblatt“ (vgl. Abb. A-2.2-1) mit den vorhandenen Reproduktionen nach Archiv, Bestandsgruppe und Signatur im Archiv des NLBL abgelegt.
Die geschilderten Erfassungsgrundsätze ermöglichen sowohl eine standortbezogene als auch eine thematische Auswertung der Archivalien-Datenbank.
Eine Besonderheit stellen die in der Leitstelle KMR Bund vorliegenden Luftbilder dar. Überwiegend handelt es sich dabei um Senkrechtaufnahmen. Diese liegen zumeist als Bildpaar vor, damit eine stereoskopische Auswertung gewährleistet werden kann. Sie sind für die Erfassung von Kriegseinwirkungen und kampfmittelverdächtigen Strukturen und darüber hinaus für die Bearbeitung von rüstungsaltlastverdächtigen Standorten unverzichtbar. Für zahlreiche militärische und zivile Liegenschaften sowie Städte und Kommunen liegen derzeit in Hannover mehr als 40.000 Kriegsluftbilder in Form von Senkrechtaufnahmen vor. Es besteht darüber hinaus ein direkter Zugriff auf ca. 2 Mio. weitere derartige Kriegsluftbilder, die in den jeweiligen Archiven direkt bestellt werden können. Luftbildrecherchen in den zumeist ausländischen Archiven sind deshalb nur noch im Ausnahmefall nötig.
Darüber hinaus sind mehr als 45.000 Nachkriegsluftbilder vorhanden, die ebenfalls bei Fragestellungen zur Kampfmittel- und Schadstoffbelastung auf Bundesliegenschaften ausgewertet wurden.
Die Luftbilder sind in einer eigenen Datenbank verzeichnet und können über raumbezogene Abfragen recherchiert werden.
Bis Dezember 2023 wurden in der Archivaliendatenbank des Bundes erfasst:
Die Erschließungsarbeiten in folgenden Archiven sind besonders erwähnenswert:
Zudem wurden ca. 600.000 Seiten Angriffs- und Missionsberichte sowie zugehörige Aufklärungsunterlagen der alliierten Luftstreitkräfte (USAAF und RAF) beschafft. Ergänzt wird dieser Bestand durch grundlegende Archivalien z. B. zum Luftkrieg über Deutschland oder durch Forschungsberichte über die Wirkung von Kampfmitteln.

Abb. A-2.2-1: Archivalien-Detailblatt